Двухкомнатная квартира 60,50 м2 по ул. Очаковское шоссе 1 за 29747850 руб.

Двухкомнатная квартира по ул. Очаковское шоссе, 1 в Москве
Цена 29 747 850 р. (491 700 р./м2)
Подать заявку на ипотеку
Район Очаково-Матвеевское
Адрес Очаковское шоссе, 1
Этаж 13/27
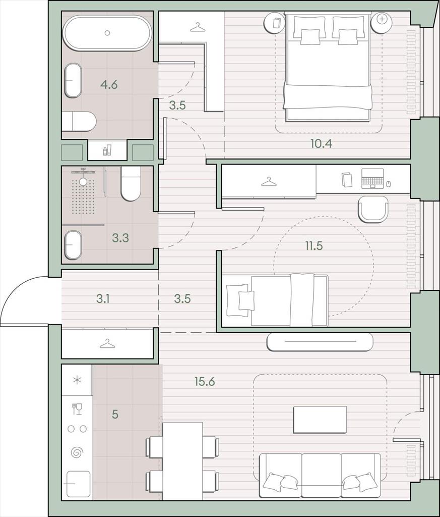
Площадь общая 60,5 м2, жилая 37,5 м2, кухни 5 м2
Кол-во комнат Двухкомнатная
О квартире Продаётся 2-комнатная квартира общей площадью 60.5 кв.м. с отделкой white box. Квартира расположена на 13 этаже корпуса 5.4 в жилом комплексе бизнес-класса «Среда на Лобачевского» в пешей доступности от метро «Аминьевская». О жилом комплексе «Среда на Лобачевского» полностью соответствует критериям современного жилого пространства. Взяв за основу рациональный подход, мы гармонично соединили дизайн, актуальные тренды и функциональность. Продуманный современный экстерьер и функциональные планировки внутри, приватные пространства и разнообразные досуговые зоны для каждого члена семьи - все это «Среда на Лобачевского». Инфраструктура Район отлично развит инаполнен жизнью, здесь ужеесть всянеобходимая инфраструктура- детские сады, школы, медучреждения, торговые центры, благоустроены парки дляпрогулок иотдыха, удобен илегкодоступен городской транспорт. Рядом расположены учебные корпуса крупных университетов - МГУ, МГИМО и РАНХиГС. Школы и детские сады в районе занимают высокие позиции в городских рейтингах, поэтому вам не придется беспокоиться о качестве образования детей. Как и об отдыхе: поблизости расположены живописные пруды, реки и парки. Это Парк Олимпийской деревни, Парк имени 50-летия Октября, Мещерский парк и Очаковские пруды. Теперь поставить галочки в еженедельном чек-листе «спорт-прогулки-встречи с друзьями» можно, не покидая любимый район. Особенности Особое внимание в проекте уделяется созданию функциональных пространств не только внутри дома, но и за его пределами. В ландшафтном парке «Среды на Лобачевского» расположены крытые зоны для спокойного времяпровождения, места для активного отдыха и спорта, коворкинг, соседский комьюнити-центр, водные объекты. -Ландшафтный парк во дворе. -Водный сад с зонами отдыха. -Зоны коворкинга. -Дизайнерские гранд-лобби. -Бесключевой доступ. -Подземный паркинг.
Описание дома
Этажность дома 27
Объявление № 23192889
Дата подачи:
26 августа 2025 г. 11:08
Дата обновления:
26 августа 2025 г. 11:28
Просмотров 6 Хотите продать быстрее?

Продавец
Отдел продаж
Показать номер телефона
Пожаловаться
Комментарии:
Добавить